Malvern Place, Lansdown, Cheltenham - £395,000 (Guide Price)
Situated within the prestigious gated enclave of Malvern Priors, Landau Cottage is a beautifully presented two-bedroom home in the heart of Cheltenham.
The ground floor is designed for modern living, featuring a bright, open-plan living and dining area that leads into a modern kitchen with built-in appliances.
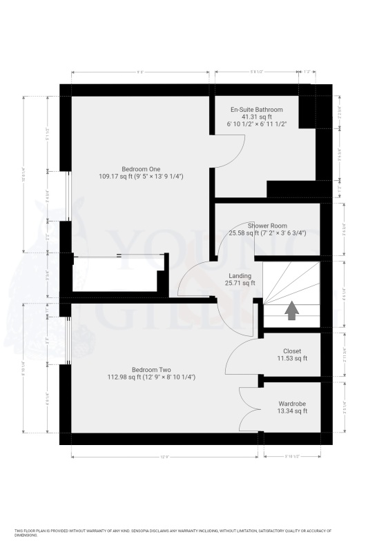
Upstairs, both double bedrooms are well-appointed with integrated wardrobes; the principal bedroom enjoys a private en-suite bathroom, while a separate shower room serves the second bedroom.
This charming cottage offers a perfect blend of privacy and town-centre convenience, complete with secure parking within the private, gated communal grounds.
The property is currently tenanted. Available with no onward chain.
Tenure: Freehold with an annual Service Charge of £900pa (£75pm) for communal areas and gate maintenance.
Council Tax Band: E
EPC Rating: D
• Property Type: Mid-Terrace House
• Construction: Standard (Brick & Tile)
• Utilities: Mains gas, electricity, water, and sewerage.
• Parking: Driveway, with one specifically allocated parking space in shared, private, gated, car park.
• Broadband Speed: Superfast (up to 72 Mbps).
Mobile Signal: Indoor signal variable to good from major providers. Buyers are encoouraged to check their specific provider via the Ofcom checker.
• Building Safety: No known issues.
• Restrictions/Covenants: None known.
• Rights & Easements: None known.
• Flood Risk: Very Low from rivers, sea, and surface water.
• Planning Permission: None known at time of marketing.
• Mining: Not in a coalfield or a known mining area.
Download Full Property Details »

















